產品導航
Product navigation
當前位置:首頁 > 提升機圖紙
-
04-29
2021

2040Z型提升機外形圖紙
2040Z型提升機系我公司為新疆**能源科技股份有限公司所設計,該Z型提升機參數如下:華信電機:5.5kw山東淄博ZQ350減速機軸承:F312斗厚:2.75mm箱體:3.25mm軸承:6312瓦座軸承...查看詳情>>
-
04-29
2021

1340Z型提升機圖紙(標準示意圖)
1340Z型提升機圖紙標準示意圖,該Z型提升機系為河南**生物股份有限公司料線設計,提升高度為6.22米,下水平段長度為2米,上水平段長度2.14米,整機碳鋼材質,料斗為塑料斗。目前該z型提升機已安裝投入生產,運行穩定。...查看詳情>>
-
10-17
2019

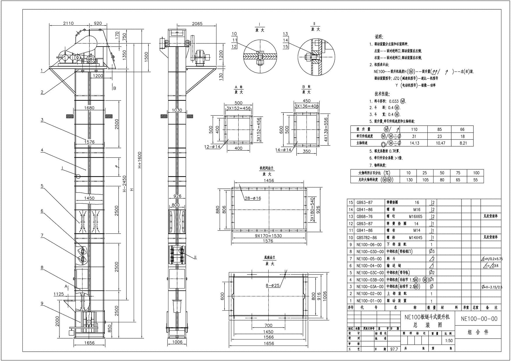
NE100板鏈斗式提升機地基及外形尺寸總裝圖
NE100板鏈斗式提升機地基及外形尺寸總裝圖NE100斗式提升機為雙排板鏈傳動,提升高度在10~39米的情況下輸送量是100m3/h,斗速0.5m/s、輸送物料粒度<70mm、斗容35L、斗寬400mm、斗距400mm。...查看詳情>>
-
10-04
2019

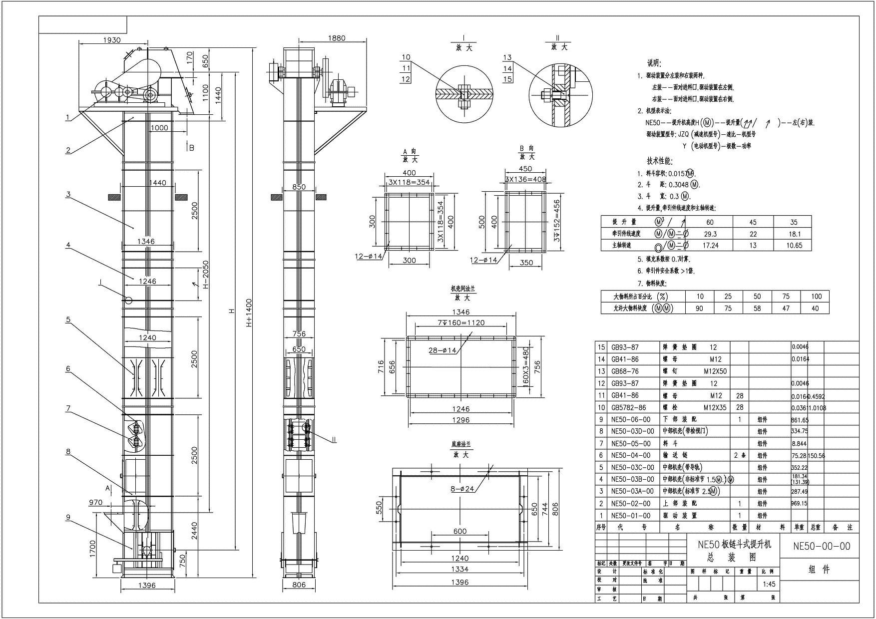
NE50斗式提升機外形圖及地基尺寸
NE50斗式提升機是雙排鏈樣式的板鏈斗式提升機,提升量:50立方/小時,料斗寬度300mm,容積約15.7L,料斗間距:304.8mm。NE50斗式提升機外形圖及地基尺寸...查看詳情>>
-
10-04
2019

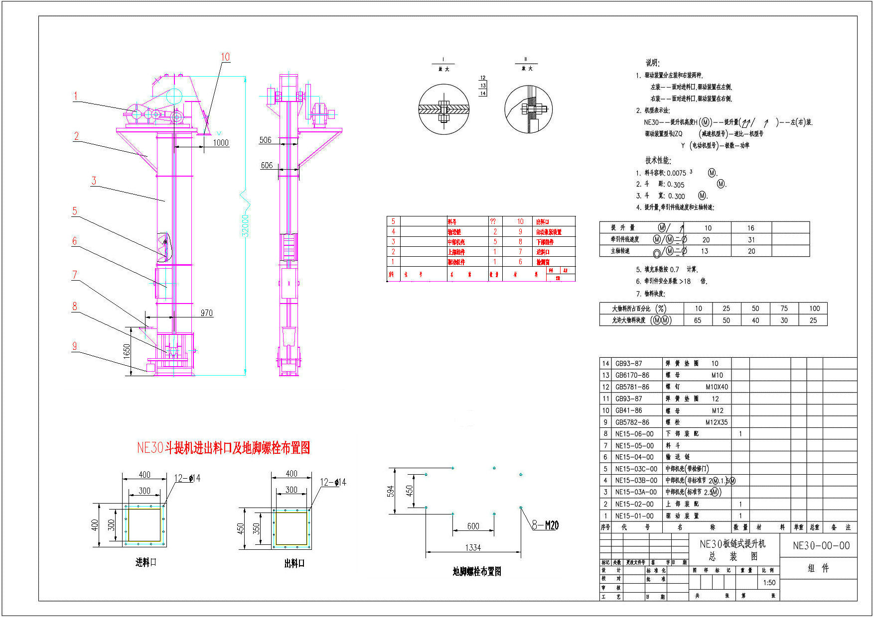
NE30斗式提升機外形圖及地基尺寸
NE30斗式提升機外形圖及地基尺寸NE30斗式提升機為單排鏈樣式,提升量30立方/小時,料斗寬度300mm,容積約7L,料斗間距:304.8mm。NE30斗式提升機為單排鏈樣式,即上下各安裝一個鏈輪。...查看詳情>>
-
09-12
2019

NE15斗式提升機外形尺寸總裝圖
NE15斗式提升機外形尺寸總裝圖中包含NE15斗式提升機外形尺寸圖和NE15斗式提升機地基圖及NE15斗式提升機料斗圖紙。點擊圖片展開大圖。...查看詳情>>
-
09-12
2019

各型號斗式提升機結構圖匯總
新鄉天太振動機械制造有限公司作為專業的斗式提升機廠家免費為用戶提供各型號斗式提升機結構圖:點擊查看詳細提升機圖紙:一:TD皮帶斗式提升機結構圖斗提機型號TD100TD160TD250TD315TD400TD500輪廓高度LC+1100C+1...查看詳情>>

