產品導航
Product navigation
當前位置:首頁 > 提升機圖紙 > 1340Z型提升機圖紙(標準示意圖)
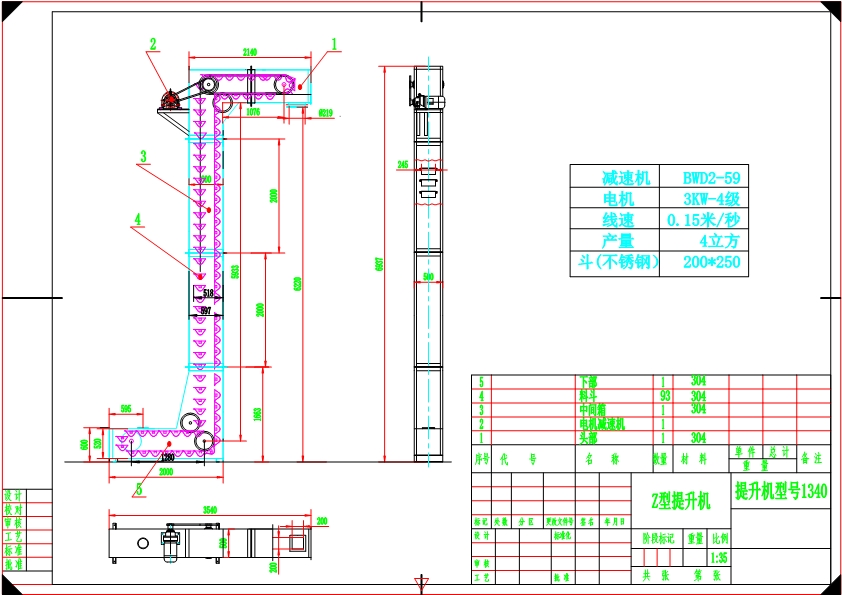
1340Z型提升機圖紙(標準示意圖)
發布人:新鄉天太斗式提升機廠家 發布時間:2021-04-29
1340Z型提升機圖紙標準示意圖,該Z型提升機系為河南**生物股份有限公司料線設計,提升高度為6.22米,下水平段長度為2米,上水平段長度2.14米,整機碳鋼材質,料斗為塑料斗。目前該z型提升機已安裝投入生產,運行穩定。

版權說明:如非注明,本站文章均為新鄉天太斗式提升機廠家原創,轉載請注明出處和附帶1340Z型提升機圖紙(標準示意圖)本文鏈接。
上一篇:斗式提升機機尾滑板漏灰解決方法
下一篇:2040Z型提升機外形圖紙

